Osigurajte komfor radnicima ili sportistima na terenu.
Trebate higijenski prostor za presvlačenje koji se lako održava?
Naše svlačionice su izolovane, opremljene, osvijetljene i spremne za upotrebu odmah po isporuci.
Idealno instant rješenje bez troškova gradnje.
NAZOVITE za PONUDU: 063 995 500
ŠTA UKLJUČUJE NAJAM SVLAČIONICA:
- IZOLOVAN PROSTOR – Ugodna temperatura za presvlačenje tokom cijele godine.
- GARDEROBNE ELEMENTE – Opcije sa klupama, vješalicama i ormarićima.
- LAKO ODRŽAVANJE – Podovi i zidovi otporni na habanje i vlagu.
- KLIMATIZACIJU I GRIJANJE – Kompletne elektro-instalacije su već ugrađene.
IDEALNA NAMJENA:
- Gradilišta: Čist prostor za presvlačenje radnika u skladu sa propisima.
- Sportski tereni: Privremene svlačionice za utakmice i turnire.
- Industrijski pogoni: Dodatni kapaciteti tokom sezonskih radova.
- Snimanja i eventi: Komforne baze za osoblje i izvođače.
IDEALNA NAMJENA:
- Gradilišta: Čist prostor za presvlačenje radnika u skladu sa propisima.
- Sportski tereni: Privremene svlačionice za utakmice i turnire.
- Industrijski pogoni: Dodatni kapaciteti tokom sezonskih radova.
- Snimanja i eventi: Komforne baze za osoblje i izvođače.
TREBATE PROSTOR ZA PRESVLAČENJE?
Ostavite kontakt, javite nam se i naći ćemo idealno prostorno rješenje.
Centralni depo: Sarajevo
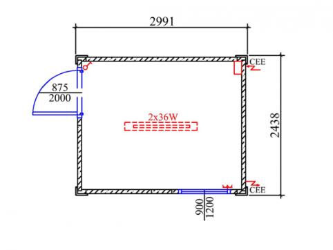
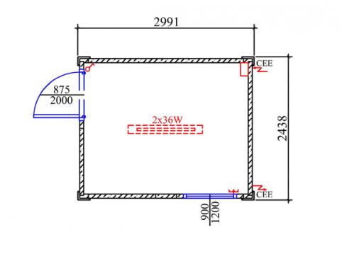
MB20
Karakteristike MB20
- Lako postavljanje i mobilnost
- Promjenjiva struktura panela
- vanjski dizajn: profilirani čelični limovi
- unutarnji dizajn: iverica
- 1 kom vanjska vrata: 875 x 2.000 mm
- 2 kom bijelih PVC prozora: 900 x 1.200 mm, mehanizam za nagib i okret, termički izoliran, s roletama
Izolacija:
- Pod: 60/100 mm – mineralna vuna
- Zidovi: 60 mm – mineralna vuna
- Krov: 100 mm – mineralna vuna
Električne instalacije:
- 1 kom 400 V / 5-polni 3 x 32 A vanjski priključak prema CEE normama, ugrađen u okvir krova, spojiv
- 1 kom razvodna kutija, s RCD-om i prekidačem
- 1 kom prekidač za svjetlo
- 2 kom 2 x 36 W fluorescentnih cijevi
- 3 kom utičnice 230 V
Dimenzije
| Tip | Vanjske dimenzije | Unutarnje dimenzije | Težina | ||||
| D | Š | V | D | Š | V | ||
| MB20 | 6.058 | 2.438 | 2.591 | 5.858 | 2.238 | 2.330 | 1,980 |
| MB25 | 6.058 | 2.438 | 2.591 | 5.858 | 2.238 | 2.330 | 2,150 |
| MB26 | 6.058 | 2.438 | 2.591 | 5.858 | 2.238 | 2.330 | 2,220 |
| MB16 | 4,880 | 2.438 | 2.591 | 4,680 | 2.238 | 2.330 | 1,620 |
| MB08 | 2,438 | 2.438 | 2.591 | 2,235 | 2.238 | 2.330 | 720 |
| MB10 | 2,991 | 2.438 | 2.591 | 2,791 | 2.238 | 2.330 | 1,130 |
PIŠITE NAM
Za ponudu ispunite formular
Naše usluge
- najam kontejnera
- prodaja kontejnera
- savjetovanje
- dizajniranje kontejnera
- proizvodnja kontejnera
- postavljanje kontejnera (manipulacija kranom, sastavljanje)
- prijevoz kontejnera
- održavanje kontejnera
- izrada kontejnera prema posebnim zahtjevima
Područja primjene naših kontejnera
- uredi za projektante
- uredi za voditelje gradilišta
- svlačionice
- smještajne jedinice
- radionice
- recepcija
- portirnica
- prodajni prostori
- stanice za testiranja
- skladištenje opreme
- skladištenje alata
- mobilni sanitarni čvor











