Mobilbox Portirnice – Profesionalna Rješenja za Portire i Zaštitarske tvrtke
Mobilbox portirnice posebno su dizajnirane za udoban i funkcionalan smještaj portira i zaštitara. Portirnice kombiniraju praktičnost, moderan dizajn i visoku razinu sigurnosti, pružajući optimalno rješenje za kontrolu pristupa uz maksimalnu uštedu prostora.
Ključne prednosti:
✔ Izuzetna preglednost – Zahvaljujući 3 prozora, portiri i zaštitari imaju potpunu kontrolu nad okolinom
✔ Udoban radni prostor – Ergonomski dizajn s dovoljno prostora za nesmetano obavljanje dužnosti
✔ Otpornost na vremenske uvjete – Visokokvalitetna izrada osigurava dugotrajnu zaštitu od kiše, vjetra i ekstremnih temperatura
✔ Kompletna opremljenost – Portirnice dolaze spremne za upotrebu, s osnovnom opremom
✔ Dodatna personalizacija – Mogućnost ugradnje klima-uređaja, dodatnog namještaja i drugih funkcionalnih elemenata prema vašim potrebama
Primjena:
Idealne za poslovne centre, stambene komplekse, građevinske terene, tvornice, parking servise i logističke centre
Kontaktirajte nas!
Za detaljnije informacije ili besplatnu informativnu ponudu, slobodno nas kontaktirajte. Mobilbox prodajni tim stoji vam na raspolaganju kako bismo pronašli najbolje rješenje za vaše potrebe.
Centralni depo: Sarajevo
MB05
Dizajn:
- Lako postavljanje i mobilnost
- Promjenjiva struktura panela
- Okvir kontejnera: bojana čelična konstrukcija
Zidovi:
- vanjski: profilirani čelični limovi
- unutarnji: iverica
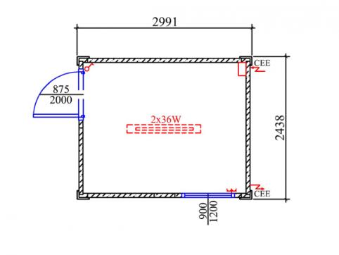
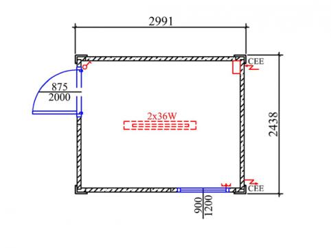
- 1 kom vanjska vrata: 875 x 2.000 mm
- 3 kom bijelih PVC prozora, termički izoliran, s roletama
- 1 kom 900 x 1.200 mm, mehanizam za nagib i okret
- 1 kom 900 x .1200 mm, fiksni
- 1 kom 900 x 1.200 mm, klizni
Boje:
- okvir kontejnera: crvena (RAL 3000)
- vanjski zidovi: svijetlosiva (RAL 7035)
- unutarnji zidovi: svijetlo drvo ili bijeli
- pod: svijetlosivi PVC
Izolacija:
- Pod: 60/100 mm – mineralna vuna
- Zidovi: 60 mm – mineralna vuna
- Krov: 100 mm – mineralna vuna
Električne instalacije:
- 1 kom 400 V / 5-polni 3 x 32 A vanjski priključak prema CEE normama, ugrađen u nosač krova, spojiv
- 1 kom razvodna kutija, s RCD-om i prekidačem
- 1 kom prekidač za svjetlo
- 1 kom 1 x 36 W fluorescentna cijev
- 2 kom utičnice 230 V
Po posebnim narudžbama:
Vanjska boja po želji prema RAL standardu
Prilagođene dimenzije i dizajn
Dimenzije
| Tip | Vanjske dimenzije | Unutarnje dimenzije | Težina | ||||
| D | Š | V | D | Š | V | ||
| MB05 | 1,400 | 2,438 | 2,591 | 1,200 | 2,238 | 2,330 | 620 |
| MB05 ECO | 1,400 | 2,438 | 2,591 | 1,200 | 2,270 | 2,300 | 650 |
| MB08 | 2,438 | 2,438 | 2,591 | 2,235 | 2,238 | 2,330 | 720 |
| MB08 ECO | 2,438 | 2,438 | 2,591 | 2,285 | 2,270 | 2,300 | 780 |
| MB10 | 2,991 | 2,438 | 2,591 | 2,791 | 2,238 | 2,330 | 1,130 |
| MB10 ECO | 2,991 | 2,438 | 2,591 | 2,838 | 2,270 | 2,300 | 820 |
| MB16 | 4,880 | 2,438 | 2,591 | 4,680 | 2,238 | 2,330 | 1,620 |
| MB20 | 6,058 | 2,438 | 2,591 | 5,858 | 2,238 | 2,330 | 1,980 |
| MB20 ECO | 6,058 | 2,438 | 2,591 | 5,905 | 2,270 | 2,300 | 1,650 |
| MB25 | 6,058 | 2,438 | 2,591 | 5,858 | 2,238 | 2,330 | 2,150 |
| MB26 | 6,058 | 2,438 | 2,591 | 5,858 | 2,238 | 2,330 | 2,220 |
| MB15 | 2,991 | 2,438 | 2,591 | 2,791 | 2,238 | 2,330 | 1,280 |
PIŠITE NAM
Za ponudu ispunite formular
Naše usluge
- najam kontejnera
- prodaja kontejnera
- savjetovanje
- dizajniranje kontejnera
- proizvodnja kontejnera
- postavljanje kontejnera (manipulacija kranom, sastavljanje)
- prijevoz kontejnera
- održavanje kontejnera
- izrada kontejnera prema posebnim zahtjevima
Područja primjene naših kontejnera
- uredi za projektante
- uredi za voditelje gradilišta
- svlačionice
- smještajne jedinice
- radionice
- recepcija
- portirnica
- prodajni prostori
- stanice za testiranja
- skladištenje opreme
- skladištenje alata
- mobilni sanitarni čvor























