Sanitarni kontejneri – Mobilbox prostorna rješenja
Mobilbox nudi profesionalna sanitarna rješenja u obliku modularnih kontejnera, idealna za:
- Gradilišta i radne lokacije
- Sportske objekte i evente
- Privremene smještajne kapacitete
- Proizvodne pogone i skladišta
Naša ponuda uključuje:
✔ WC kontejnere (pojedinačne i višestruke)
✔ Tuš kabine (individualne i grupne)
✔ Kombinirane jedinice (WC + tuš)
✔ Prilagođene izvedbe za osobe s invaliditetom
✔ Septičke tankove za lokacije bez kanalizacije
Ključne prednosti:
- Standardizirane dimenzije (5′, 10′, 20′)
- Modularni sustav – jednostavno proširenje i kombiniranje
- Potpuno opremljeni – vodovod, ventilacija, električni priključci
- Brza instalacija – spremni za korištenje odmah
- Visoka kvaliteta izrade – izdržljivost i dugotrajnost
Zašto odabrati Mobilbox?
✅ Prilagodljiva rješenja – dizajnirana prema vašim potrebama
✅ Brza realizacija – od narudžbe do instalacije
✅ Servis i održavanje – potpuna tehnička podrška
✅ Kompletan logistički paket – transport i montaža
📞 Kontaktirajte nas za besplatnu ponudu!
Kome su naši sanitarni kontejneri neophodni?
✔ Građevinske tvrtke – Brzo i higijenski prilagođeno rješenje za radnike na lokacijama bez postojeće infrastrukture
✔ Organizatori događaja – Profesionalni sanitarijski kontejneri za festivale, koncerte i javne manifestacije
✔ Upravitelji kampova – Udobne tuš kabine i WC-i za goste u prirodnom okruženju
✔ Upravitelji privremenih objekata – Hitna rješenja za skloništa, humanitarne centre ili radne logore
✔ Sportske udruge – Pratilje za sportske terene i trening kampu bez fiksnih sanitarija
Mobilbox sanitarni kontejneri – optimalno rješenje tamo gdje je higijena prioritet!
Sanitarni kontejneri:
- WC kontejneri
- tuš kontejneri
- WC/tuš kontejneri
- Septički spremnici
- Spremnici za vodu
Centralni depo: Sarajevo
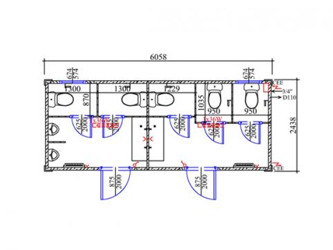
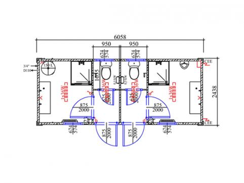
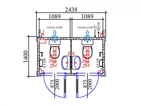
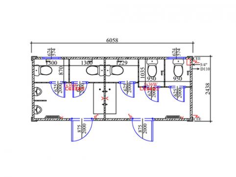
MW20 WC kontejner
Osnovna oprema:
- 1 kom vanjska vrata: 875 x 2.000 mm
- 4 kom bijelih PVC prozora s nagibnim mehanizmom: 674 x 574 mm, termički izolirano zamagljeno staklo
- 6 kom WC kabina, vrata s WC bravom
- 6 kom keramičkih WC-a s vodokotlićem, držač za papir
- 2 kom duplih akrilnih umivaonika sa slavinom hladne vode, ogledalo, PVC polica, držač za sapun i držač ručnika
- 2 kom pisoara
- 2 kom pregrade
Električne instalacije:
- 1 kom 400 V / 5-polni 3 x 32 A vanjski priključak prema CEE normama, ugrađen u okvir krova, spojiv
- 1 kom razvodna kutija s osiguračima, s RCD-om i prekidačem
- 2 kom 1 x 36 W fluorescentnih cijevi
- 1 kom prekidač za svjetlo
- 2 kom utičnice 230 V
- 1 kom el. grijalica 2,0 kW
Dimenzije
| Tip | Vanjske dimenzije | Unutarnje dimenzije | Težina | ||||
| D | Š | V | D | Š | V | ||
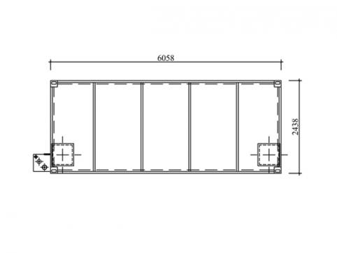
| MW20 | 6,058 | 2,438 | 2,591 | 5.858 | 2.238 | 2.330 | 2,760 |
| MW23 | 6,058 | 2,438 | 2,591 | 5.858 | 2.238 | 2.330 | 2,690 |
| MS20 | 6,058 | 2,438 | 2,591 | 5.858 | 2.238 | 2.330 | 2,560 |
| MS22 | 6,058 | 2,438 | 2,591 | 5.858 | 2.238 | 2.330 | 2,460 |
| MS28 | 6,058 | 2,438 | 2,591 | 5.858 | 2.238 | 2.330 | 2,690 |
| MZ20 | 6,058 | 2,438 | 2,591 | 5.858 | 2.238 | 2.330 | 2,520 |
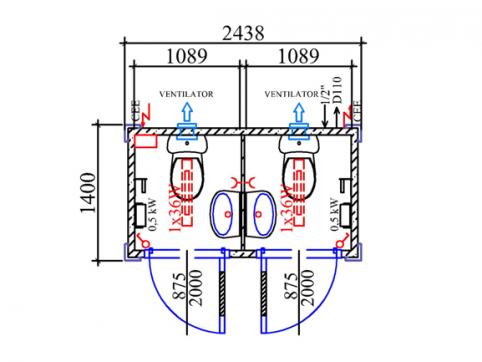
| MW05 | 1,400 | 2,438 | 2,591 | 1,200 | 2.238 | 2.330 | 720 |
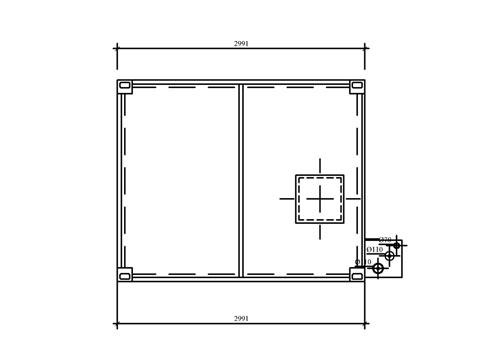
| MS10 | 2,991 | 2,438 | 2,591 | 2,791 | 2.238 | 2.330 | 1,560 |
| MW10 | 2,991 | 2,438 | 2,591 | 2,791 | 2.238 | 2.330 | 1,440 |
| MT10 | 2,991 | 2,438 | 700 | 800 | |||
| MT20 | 6,058 | 2,438 | 700 | 1,800 | |||
| MVT20 | 6,058 | 2,438 | 700 | 1,900 | |||
| MB27 | 6,058 | 2,438 | 2,591 | 5,858 | 2,238 | 2,330 | 2,300 |
PIŠITE NAM
Za ponudu ispunite formular
Naše usluge
- najam kontejnera
- prodaja kontejnera
- savjetovanje
- dizajniranje kontejnera
- proizvodnja kontejnera
- postavljanje kontejnera (manipulacija kranom, sastavljanje)
- prijevoz kontejnera
- održavanje kontejnera
- izrada kontejnera prema posebnim zahtjevima
Područja primjene naših kontejnera
- uredi za projektante
- uredi za voditelje gradilišta
- svlačionice
- smještajne jedinice
- radionice
- recepcija
- portirnica
- prodajni prostori
- stanice za testiranja
- skladištenje opreme
- skladištenje alata
- mobilni sanitarni čvor























